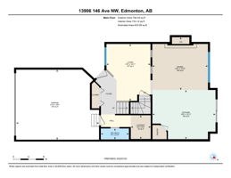
13906 146 Ave NW, Edmonton, AB T6V 1V4
Toggle Navigation
Images
Floor Plans
3D Tour
Map
13906 146 Ave NW
Edmonton, AB T6V 1V4
Scroll to Content
Images
Slideshow
Photo Grid
Hide
Previous
Next
Show more
Floor Plans
Slideshow
Photo Grid
Hide
Previous
Next
3D Tour